咨询热线
15253660967
针对天然石墨和人造石墨性质的不同,山东盛宝技术团队采用德国技术,专业研发、生产了石墨超细粉碎分级、颗粒整形设备。
设备特点:
1、粉碎、整形结构专业设计,效率高,颗粒形貌好;
2、PLC智能化控制,设备运行稳,磨损小,能耗低;
3、粒度变频可调,分级精度高,分布窄,曲线集中;
4、颗粒粒度D50=(4-20)um之间任意可调 操作简单;
5、系统负压运行,环保清洁,噪音源配置消音器降噪.
应用范围
广泛应用于天然石墨、人造石墨、针状焦、石油焦、生焦,煅后焦、焦炭、沥青焦等.
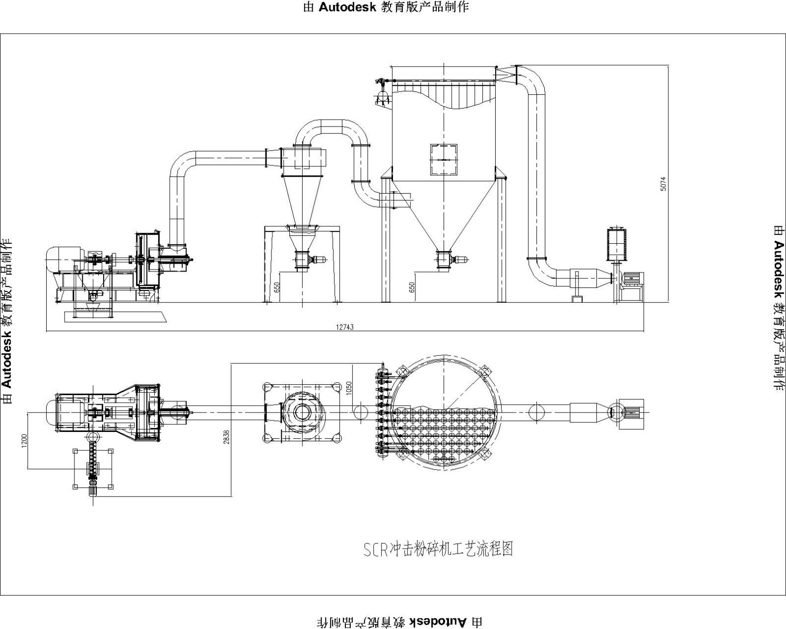
SCR冲击粉碎机工艺流程(专用设备一):



SUM超细粉碎机工艺流程(专用设备二):

采用制粉、选粉一体化设计,出料粒径可根据需要调节;叶轮采用直式或斜式;粉碎分级机、旋风收集器、脉冲除尘器、引风机、电控柜组成一套完整系统,机适合于干粉生产场合。
物料进入磨体,落入高速旋转的双层飞盘,进入高速运动状态,通过导料板物料集束性流动, 因碰撞、剪切而粉碎;合格物料经分级叶轮分出由旋风器收集,粗料落入磨腔继续粉碎。

Copyright © 山东盛宝传热科技有限公司 www.shengbaofenti.com ICP备案号:鲁ICP备12014117号-12

